The Condo Mania Team
SOLD! MLS: 6768857 $397,990
2 Bedrooms with 3 Baths28122 N 28TH LANE
PHOENIX AZ 85085MLS: 6768857
Status: SOLD
Closed On: 2025-01-30
Sold Price: $397,990
Sold Price per SqFt: $274
Square Footage: 14552 Bedrooms
3 Baths
Year Built: 2024
Zip Code: 85085
Listing Remarks
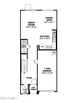
Set for completion in November 2024, this sought-after Orion floor plan offers multiple spaces for entertaining, including a spacious loft, a great room, and a welcoming back patio. Conveniently located near the Shops at Norterra and with easy access to the I-17, commuting to nearby employment hubs is a breeze. Don't miss your chance to own an affordable, brand-new home in the desirable 17 North townhome community, where low-maintenance living meets exceptional convenience! ^^Up to 6% of Base Price can be applied towards closing cost and/or short-long term interest rate buydowns when choosing our preferred Lender. Additional eligibility and limited time restrictions apply.
Address: 28122 N 28TH LANE PHOENIX AZ 85085
ARMLS CHAD FULLER of K. HOVNANIAN GREAT WESTERN HOMES, LLC
Condo Mania Agent
Kristy McCullough
HomeSmart
Real Estate Agent
Phone: 602-999-2246
Request More Information
Listing Details
STATUS: Closed PROPERTY TYPE: Residential PROPERTY SUB TYPE: Townhouse LISTING CONTRACT DATE: 2024-10-09 CLOSE DATE: 2025-01-30 BEDROOMS: 2 BATHROOMS: 2.5 LIVING AREA SQ FT: 1455 LIVING AREA SOURCE: Assessor YEAR BUILT: 2024 TAXES: $47 HOA/MGMT CO: 17 N. Community Asso HOA/MGMT PHONE: 480-422-0888 HOA FEES FREQUENCY: Monthly HOA FEES: $96 HOA #2 FEES FREQUENCY: Monthly HOA #2 FEES: $79 HOA INCLUDES: Roof Repair, Street Maint, Front Yard Maint, Maintenance Exterior COMMUNITY FEATURES: Gated, Community Pool, Playground APPLIANCES INCLUDED: Electric Cooktop ARCHITECTURAL STYLE: Ranch BUILDER NAME: K. Hovnanian Homes CONSTRUCTION: Stucco, Wood Frame, No VOC Paint, Painted FIREPLACE: None FLOORING: Carpet, Tile HEATING: Electric COOLING: Programmable Thmstat INTERIOR FEATURES: Upstairs, 9+ Flat Ceilings, Pantry, 3/4 Bath Master Bdrm LAUNDRY FEATURES: Engy Star (See Rmks), Wshr/Dry HookUp Only LOT FEATURES: Desert Front, Dirt Back, Auto Timer H2O Front, Irrigation Front # GARAGE SPACES: 1 # CARPORT SPACES: 0 PARKING FEATURES: Unassigned, Direct Access ROOF: Tile STORIES TOTAL: 2 VIEW: Mountain(s) LEGAL DESCRIPTION: LOT 70 17 NORTH MCR 166106 LISTING AGENT: CHAD FULLER LISTING OFFICE: K. HOVNANIAN GREAT WESTERN HOMES, LLC LISTING CONTACT: 877-546-8669
Property Location: 28122 N 28TH LANE PHOENIX AZ 85085
This Listing
Active Listings Nearby
You Might Also Be Interested In...
The Fair Housing Act prohibits discrimination in housing based on color, race, religion, national origin, sex, familial status, or disability.
ARMLS Logo indicates a property listed by a real estate brokerage other than Homesmart. All information should be verified by the recipient and none is guaranteed as accurate by ARMLS. Based on information from the Arizona Regional Multiple Listing Service. Copyright © 2026. Arizona Regional Multiple Listing Service, Inc. All rights reserved.
Information Deemed Reliable But Not Guaranteed. The information being provided is for consumer's personal, non-commercial use and may not be used for any purpose other than to identify prospective properties consumers may be interested in purchasing. This information, including square footage, while not guaranteed, has been acquired from sources believed to be reliable.
Last Updated: 2026-04-19 00:51:06
Phoenix Condo Mania






