The Condo Mania Team
MLS: 6973355 $275,000
2 Bedrooms with 2 Baths10231 N 12TH COURT 3#3
PHOENIX AZ 85020MLS: 6973355
Status: ACTIVE
List Price: $275,000
Price per SQFT: $192
Square Footage: 14362 Bedrooms
2 Baths
Year Built: 1993
Zip Code: 85020
Listing Remarks
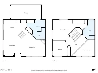
Rare opportunity in North Phoenix. This hard-to-find townhome is ideally located just minutes from premier lifestyle amenities including Piestewa Peak Mountain Preserve, Lookout Mountain Golf Club, and fine dining at Different Pointe of View, with versatile shopping and dining close by. This 2-bedroom, 2-bath townhome welcomes you through a charming wraparound cobblestone-style courtyard overlooking a serene green basin with mountain views. Inside, the living room features dramatic cathedral-style ceilings that capture the surrounding mountain scenery, creating a light-filled and inviting space. The open-concept main level includes a full bathroom downstairs, ideal for guests. Upstairs, you'll find two bedrooms, a full bathroom, and an additional loft area, perfect for a home office, reading nook, or flex space. Nestled within a **highly sought-after gated community. This home offers exceptional privacy and a truly unique setting. Ready for a buyer to add their personal touch, this is a special opportunity to own in one of North Phoenix's most distinctive communities.
Address: 10231 N 12TH COURT 3#3 PHOENIX AZ 85020
ARMLS ANDREA D GARCIA of KELLER WILLIAMS REALTY SONORAN LIVING
Community: POINT RESORT TAPATIO CLIFFS ... Listing 19 of 26
First -- Next -- Previous -- Last
Condo Mania Agent
Kristy McCullough
HomeSmart
Real Estate Agent
Phone: 602-999-2246
Request More Information
Listing Details
STATUS: Active PROPERTY TYPE: Residential PROPERTY SUB TYPE: Townhouse SPECIAL LISTING CONDITIONS: Probate Listing LISTING CONTRACT DATE: 2026-01-23 BEDROOMS: 2 BATHROOMS: 2 LIVING AREA SQ FT: 1436 LIVING AREA SOURCE: Assessor YEAR BUILT: 1993 TAXES: $1,374 HOA/MGMT CO: The Pointe Resort C HOA/MGMT PHONE: 623-877-1396 HOA FEES FREQUENCY: Monthly HOA FEES: $463 HOA INCLUDES: Roof Repair, Maintenance Grounds, Trash, Water, Maintenance Exterior COMMUNITY FEATURES: Pool, Pickleball, Community Spa, Community Spa Htd, Tennis Court(s) APPLIANCES INCLUDED: Electric Cooktop ARCHITECTURAL STYLE: Spanish BUILDER NAME: UNKNOWN CONSTRUCTION: Stucco, Wood Frame EXTERIOR FEATURES: Balcony FIREPLACE: Family Room FLOORING: Carpet, Laminate, Tile HEATING: Electric COOLING: Central Air INTERIOR FEATURES: High Speed Internet, Double Vanity, Upstairs, Eat-in Kitchen, Vaulted Ceiling(s) LOT FEATURES: Borders Common Area, East/West Exposure, Gravel/Stone Front # GARAGE SPACES: 1 # CARPORT SPACES: 0 PARKING FEATURES: Garage Door Opener, Direct Access COMMON WALLS: 1 Common Wall ROOF: Tile STORIES TOTAL: 1 VIEW: Mountain(s) LEGAL DESCRIPTION: LOT 735 POINTE RESORT CONDO TAPATIO CLIFFS PH 11-15 MCR LISTING AGENT: ANDREA D GARCIA LISTING OFFICE: KELLER WILLIAMS REALTY SONORAN LIVING LISTING CONTACT: 602-733-2278
Estimated Monthly Payments
List Price: $275,000 20% Down Payment: $55,000 Loan Amount: $220,000 Loan Type: 30 Year Fixed Interest Rate: 6.5 % Monthly Payment: $1,391 Estimate does not include taxes, fees, insurance.
Request More Information
Property Location: 10231 N 12TH COURT 3#3 PHOENIX AZ 85020
This Listing
Active Listings Nearby
Condo Mania Agent
Jay Kopas
HomeSmart
Real Estate Agent
Phone: 623-680-5183
You Might Also Be Interested In...
Community: POINT RESORT TAPATIO CLIFFS ... Listing 19 of 26
First -- Next -- Previous -- Last
The Fair Housing Act prohibits discrimination in housing based on color, race, religion, national origin, sex, familial status, or disability.
ARMLS Logo indicates a property listed by a real estate brokerage other than Homesmart. All information should be verified by the recipient and none is guaranteed as accurate by ARMLS. Based on information from the Arizona Regional Multiple Listing Service. Copyright © 2026. Arizona Regional Multiple Listing Service, Inc. All rights reserved.
Information Deemed Reliable But Not Guaranteed. The information being provided is for consumer's personal, non-commercial use and may not be used for any purpose other than to identify prospective properties consumers may be interested in purchasing. This information, including square footage, while not guaranteed, has been acquired from sources believed to be reliable.
Last Updated: 2026-01-23 15:49:55
Phoenix Condo Mania







