The Condo Mania Team
MLS: 6938198 $450,000
2 Bedrooms with 2 Baths20660 N 40TH STREET#1179
PHOENIX AZ 85050MLS: 6938198
Status: ACTIVE
List Price: $450,000
Price per SQFT: $327
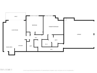
Square Footage: 13762 Bedrooms
2 Baths
Year Built: 2004
Zip Code: 85050
Listing Remarks
xperience elevated living in this beautifully upgraded 2 bed, 2 bath ground floor, end-unit condo that blends comfort, privacy, and modern upgrades in a gated community with two pools, clubhouse, and gameroom. The open-concept layout features wood-look LVP flooring, granite counters, a spacious great room, dining area, and breakfast bar—perfect for everyday living or entertaining. Enjoy a private patio with no neighbors behind and neutral finishes throughout. Recent updates include 2020 appliances and AC, 2021 water softener and carbon filter, and 2023 water heater. Ceiling fans and Top Down Bottom Up shades add comfort and efficiency. The epoxy-coated 2-car garage with custom cabinets completes the package. A true low-maintenance gem near premier shopping, golf, and dining.
Address: 20660 N 40TH STREET#1179 PHOENIX AZ 85050
ARMLS ROB MADDEN of HOMESMART
Community: LA VERNE ... Listing 3 of 5
First -- Next -- Previous -- Last
Condo Mania Agent
Melody Holehan-Kopas
HomeSmart
Real Estate Agent
Phone: 623-910-5788
Request More Information
Listing Details
STATUS: Active PROPERTY TYPE: Residential PROPERTY SUB TYPE: Townhouse LISTING CONTRACT DATE: 2025-10-24 BEDROOMS: 2 BATHROOMS: 2 LIVING AREA SQ FT: 1376 LIVING AREA SOURCE: Assessor YEAR BUILT: 2004 TAXES: $2,065 HOA/MGMT CO: LaVerne HOA/MGMT PHONE: 480-941-1077 HOA FEES FREQUENCY: Monthly HOA FEES: $360 HOA INCLUDES: Roof Repair, Insurance, Pest Control, Maintenance Grounds, Street Maint, Front Yard Maint, Trash, Roof Replacement, Maintenance Exterior COMMUNITY FEATURES: Gated, Community Spa Htd, Community Media Room, Concierge, Fitness Center APPLIANCES INCLUDED: Water Purifier ARCHITECTURAL STYLE: Santa Barbara/Tuscan BUILDER NAME: Northpeak CONSTRUCTION: Stucco, Wood Frame, Painted, Stone EXTERIOR FEATURES: Private Street(s) FLOORING: Vinyl, Tile HEATING: Electric COOLING: Central Air, Ceiling Fan(s) INTERIOR FEATURES: High Speed Internet, Granite Counters, Double Vanity, Breakfast Bar, 9+ Flat Ceilings, No Interior Steps, Pantry, 3/4 Bath Master Bdrm LOT FEATURES: Corner Lot, Desert Back, Desert Front # GARAGE SPACES: 2 # CARPORT SPACES: 0 PARKING FEATURES: Garage Door Opener, Extended Length Garage, Direct Access, Attch'd Gar Cabinets COMMON WALLS: End Unit ROOF: Tile STORIES TOTAL: 2 LEGAL DESCRIPTION: LOT 1179 LA VERNE CONDOMINIUMS REPLAT MCR 084935 LISTING AGENT: ROB MADDEN LISTING OFFICE: HOMESMART LISTING CONTACT: 480-888-1234
Estimated Monthly Payments
List Price: $450,000 20% Down Payment: $90,000 Loan Amount: $360,000 Loan Type: 30 Year Fixed Interest Rate: 6.5 % Monthly Payment: $2,275 Estimate does not include taxes, fees, insurance.
Request More Information
Property Location: 20660 N 40TH STREET#1179 PHOENIX AZ 85050
This Listing
Active Listings Nearby
Condo Mania Agent
Angela Covey
HomeSmart
Real Estate Broker
Phone: 602-677-9038
You Might Also Be Interested In...
Community: LA VERNE ... Listing 3 of 5
First -- Next -- Previous -- Last
The Fair Housing Act prohibits discrimination in housing based on color, race, religion, national origin, sex, familial status, or disability.
ARMLS Logo indicates a property listed by a real estate brokerage other than Homesmart. All information should be verified by the recipient and none is guaranteed as accurate by ARMLS. Based on information from the Arizona Regional Multiple Listing Service. Copyright © 2025. Arizona Regional Multiple Listing Service, Inc. All rights reserved.
Information Deemed Reliable But Not Guaranteed. The information being provided is for consumer's personal, non-commercial use and may not be used for any purpose other than to identify prospective properties consumers may be interested in purchasing. This information, including square footage, while not guaranteed, has been acquired from sources believed to be reliable.
Last Updated: 2025-10-25 18:46:13
Phoenix Condo Mania







