The Condo Mania Team
SOLD! MLS: 6873980 $565,000
3 Bedrooms with 3 Baths3935 E ROUGH RIDER ROAD#1039
PHOENIX AZ 85050MLS: 6873980
Status: SOLD
Closed On: 2025-08-05
Sold Price: $565,000
Sold Price per SqFt: $274
Square Footage: 20633 Bedrooms
3 Baths
Year Built: 2006
Zip Code: 85050
Listing Remarks
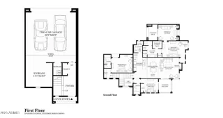
The Villages at Aviano is a wonderful townhome full time or lock and leave community that enjoys two separate recreations centers - the Villages pool and rec center plus Aviano's master planned large community center with enormous resort style pool, patio, clubhouse, workout facillity, kitchen, meeting rooms, tennis, pickleball and basketball courts in addition. This popular Toll Bros Sovanna plan includes 2063 sq ft. with 3 bedrooms and 3 full baths and is one of the few corner units that enjoys amazing view of the desert beyond with glorious sunsets. The great room is an amazing space with windows all around. Primary bedroom feature an additional attached space that is currently doubling as an office and beautiful customized closet. There are two covered patios, vinyl floors, brand new carpeting in primary and secondary bedroom, new ceiling fans and additional lighting. Separate laundry rooms with additional counter and cabinets, newer Samsung and Bosch appliances, custom rod iron staircase from entry, three car tandem garage and so much more.
Address: 3935 E ROUGH RIDER ROAD#1039 PHOENIX AZ 85050
ARMLS DONNA HARRIS of HOMESMART
Condo Mania Agent
Melody Holehan-Kopas
HomeSmart
Real Estate Agent
Phone: 623-910-5788
Request More Information
Listing Details
STATUS: Closed PROPERTY TYPE: Residential PROPERTY SUB TYPE: Townhouse LISTING CONTRACT DATE: 2025-05-30 ON MARKET DATE: 2025-06-06 CLOSE DATE: 2025-08-05 BEDROOMS: 3 BATHROOMS: 3 LIVING AREA SQ FT: 2063 LIVING AREA SOURCE: Assessor YEAR BUILT: 2006 TAXES: $2,353 HOA/MGMT CO: VILLAGES AT AVIANO HOA/MGMT PHONE: 480-551-4300 HOA FEES FREQUENCY: Monthly HOA FEES: $413 HOA #2 FEES FREQUENCY: Semi-Annually HOA #2 FEES: $288 HOA INCLUDES: Roof Repair, Insurance, Maintenance Grounds, Roof Replacement, Maintenance Exterior COMMUNITY FEATURES: Pickleball, Community Spa, Community Spa Htd, Tennis Court(s), Playground, Biking/Walking Path, Fitness Center APPLIANCES INCLUDED: Electric Cooktop ARCHITECTURAL STYLE: Spanish BUILDER NAME: Toll Bros CONSTRUCTION: Stucco, Wood Frame, Painted, Stone EXTERIOR FEATURES: Balcony, Sport Court(s), Tennis Court(s), Built-in Barbecue FIREPLACE: None FLOORING: Carpet, Vinyl, Tile HEATING: Electric COOLING: Central Air, Programmable Thmstat INTERIOR FEATURES: High Speed Internet, Granite Counters, Double Vanity, Breakfast Bar, 9+ Flat Ceilings, Pantry, Full Bth Master Bdrm, Separate Shwr & Tub LOT FEATURES: Sprinklers In Rear, Sprinklers In Front, Corner Lot, Desert Back, Desert Front # GARAGE SPACES: 2. 5 # CARPORT SPACES: 0 PARKING FEATURES: Shared Driveway COMMON WALLS: Two Common Walls, End Unit ROOF: Tile STORIES TOTAL: 2 LEGAL DESCRIPTION: LOT 1039 VILLAGES AT AVIANO CONDOMINIUM MCR 069949 LISTING AGENT: DONNA HARRIS LISTING OFFICE: HOMESMART LISTING CONTACT: 602-549-8208
Property Location: 3935 E ROUGH RIDER ROAD#1039 PHOENIX AZ 85050
This Listing
Active Listings Nearby
You Might Also Be Interested In...
The Fair Housing Act prohibits discrimination in housing based on color, race, religion, national origin, sex, familial status, or disability.
ARMLS Logo indicates a property listed by a real estate brokerage other than Homesmart. All information should be verified by the recipient and none is guaranteed as accurate by ARMLS. Based on information from the Arizona Regional Multiple Listing Service. Copyright © 2026. Arizona Regional Multiple Listing Service, Inc. All rights reserved.
Information Deemed Reliable But Not Guaranteed. The information being provided is for consumer's personal, non-commercial use and may not be used for any purpose other than to identify prospective properties consumers may be interested in purchasing. This information, including square footage, while not guaranteed, has been acquired from sources believed to be reliable.
Last Updated: 2026-04-29 00:50:00
Phoenix Condo Mania






