The Condo Mania Team
SOLD! MLS: 6740739 $401,995
3 Bedrooms with 3 Baths2908 N CLANTON STREET
BUCKEYE AZ 85396MLS: 6740739
Status: SOLD
Closed On: 2025-01-31
Sold Price: $401,995
Sold Price per SqFt: $266
Square Footage: 15103 Bedrooms
3 Baths
Year Built: 2024
Zip Code: 85396
Listing Remarks
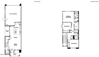
The main floor of this beautiful home offers a convenient powder room, an open dining area and an impressive kitchen featuring a roomy pantry, a center island and center-meet doors leading onto a relaxing covered patio. Upstairs, discover a laundry, two large bedrooms with a shared bath and an elegant primary suite boasting an oversized walk-in closet and attached bath with double sinks. Designer curated finishes complete this home!
Address: 2908 N CLANTON STREET BUCKEYE AZ 85396
ARMLS JOHN BARGNESI of RICHMOND AMERICAN HOMES
Condo Mania Agent
Melody Holehan-Kopas
HomeSmart
Real Estate Agent
Phone: 623-910-5788
Request More Information
Listing Details
STATUS: Closed PROPERTY TYPE: Residential PROPERTY SUB TYPE: Patio Home LISTING CONTRACT DATE: 2024-08-07 CLOSE DATE: 2025-01-31 BEDROOMS: 3 LIVING AREA SQ FT: 1510 LIVING AREA SOURCE: Builder YEAR BUILT: 2024 TAXES: $62 HOA/MGMT CO: Verrado Com Assoc HOA/MGMT PHONE: 623-466-7008 HOA FEES FREQUENCY: Monthly HOA FEES: $130 HOA INCLUDES: Maintenance Grounds, Street Maint COMMUNITY FEATURES: Pool, Golf, Playground, Biking/Walking Path APPLIANCES INCLUDED: Stacked Washer/Dryer, Dryer, Washer, Refrigerator, Built-in Microwave, Dishwasher, Disposal, Gas Range, Gas Oven ARCHITECTURAL STYLE: Contemporary BUILDER NAME: Richmond American CONSTRUCTION: Stucco, Wood Frame, Painted, Stone FLOORING: Carpet, Tile HEATING: Natural Gas COOLING: Central Air INTERIOR FEATURES: Granite Counters, Double Vanity, Upstairs, Kitchen Island, Pantry, 3/4 Bath Master Bdrm LAUNDRY FEATURES: Upstairs Laundry, Inside, Engy Star (See Rmks) LOT FEATURES: Alley, Desert Front # GARAGE SPACES: 2 # CARPORT SPACES: 0 PARKING FEATURES: Garage Door Opener ROOF: Tile STORIES TOTAL: 2 LISTING AGENT: JOHN BARGNESI LISTING OFFICE: RICHMOND AMERICAN HOMES LISTING CONTACT: 480-624-0244
Property Location: 2908 N CLANTON STREET BUCKEYE AZ 85396
This Listing
Active Listings Nearby
You Might Also Be Interested In...
The Fair Housing Act prohibits discrimination in housing based on color, race, religion, national origin, sex, familial status, or disability.
ARMLS Logo indicates a property listed by a real estate brokerage other than Homesmart. All information should be verified by the recipient and none is guaranteed as accurate by ARMLS. Based on information from the Arizona Regional Multiple Listing Service. Copyright © 2026. Arizona Regional Multiple Listing Service, Inc. All rights reserved.
Information Deemed Reliable But Not Guaranteed. The information being provided is for consumer's personal, non-commercial use and may not be used for any purpose other than to identify prospective properties consumers may be interested in purchasing. This information, including square footage, while not guaranteed, has been acquired from sources believed to be reliable.
Last Updated: 2026-04-15 18:53:16
Phoenix Condo Mania

