The Condo Mania Team
SOLD! MLS: 6735938 $349,000
2 Bedrooms with 2 Baths4114 E UNION HILLS DRIVE 1215#1215
PHOENIX AZ 85050MLS: 6735938
Status: SOLD
Closed On: 2024-10-15
Sold Price: $349,000
Sold Price per SqFt: $348
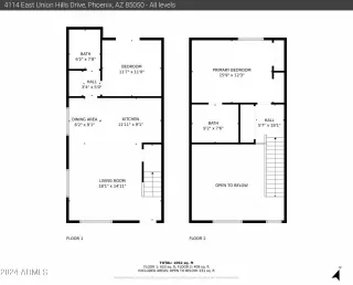
Square Footage: 10022 Bedrooms
2 Baths
Year Built: 1990
Zip Code: 85050
Listing Remarks
Step into this charming 2-bedroom, 2-bathroom end unit home with vaulted ceilings located in the heart of Phoenix, AZ. With a generously designed open floor plan, this residence is one of the few with a fireplace and provides comfortable living and entertaining areas. The kitchen is equipped with modern appliances, plenty of cabinet space, and a convenient breakfast bar, perfect for casual dining or entertaining friends. The master bedroom boasts an updated ensuite bathroom and ample closet space. Take advantage of Arizona's wonderful climate at the community pool, ideal for outdoor activities and leisure time. Situated close to schools, shopping, and dining, this home blends convenience with peaceful suburban living.
Address: 4114 E UNION HILLS DRIVE 1215#1215 PHOENIX AZ 85050
ARMLS BRITTNEY MCGUIRE of GREAT WAY REAL ESTATE
Condo Mania Agent
Mary Ann Kren
HomeSmart
Associate Broker
Phone: 480-221-4437
Request More Information
Listing Details
STATUS: Closed PROPERTY TYPE: Residential PROPERTY SUB TYPE: Townhouse LISTING CONTRACT DATE: 2024-07-09 CLOSE DATE: 2024-10-15 BEDROOMS: 2 BATHROOMS: 2 LIVING AREA SQ FT: 1002 LIVING AREA SOURCE: Assessor YEAR BUILT: 1990 TAXES: $706 HOA/MGMT CO: Towns at Paradise HOA/MGMT PHONE: 480-284-5551 HOA FEES FREQUENCY: Monthly HOA FEES: $259 HOA INCLUDES: Roof Repair, Insurance, Pest Control, Maintenance Grounds, Street Maint, Front Yard Maint, Roof Replacement, Maintenance Exterior COMMUNITY FEATURES: Pool APPLIANCES INCLUDED: Dryer, Washer, Refrigerator, Built-in Microwave, Dishwasher, Disposal, Electric Cooktop BUILDER NAME: unknown CONSTRUCTION: Stucco, Wood Frame EXTERIOR FEATURES: Storage FLOORING: Carpet, Vinyl, Tile HEATING: Electric COOLING: Central Air, Ceiling Fan(s) INTERIOR FEATURES: Granite Counters, Upstairs, Eat-in Kitchen, Breakfast Bar, Vaulted Ceiling(s), Full Bth Master Bdrm LAUNDRY FEATURES: Upstairs Laundry LOT FEATURES: North/South Exposure, Desert Front # GARAGE SPACES: 0 # CARPORT SPACES: 1 COMMON WALLS: 1 Common Wall, End Unit ROOF: Composition STORIES TOTAL: 2 LEGAL DESCRIPTION: LOT 1215 TOWNES AT PARADISE VALLEY LANDINGS CONDO MCR 030520 LISTING AGENT: BRITTNEY MCGUIRE LISTING OFFICE: GREAT WAY REAL ESTATE LISTING CONTACT: 720-427-5795
Property Location: 4114 E UNION HILLS DRIVE 1215#1215 PHOENIX AZ 85050
This Listing
Active Listings Nearby
You Might Also Be Interested In...
The Fair Housing Act prohibits discrimination in housing based on color, race, religion, national origin, sex, familial status, or disability.
ARMLS Logo indicates a property listed by a real estate brokerage other than Homesmart. All information should be verified by the recipient and none is guaranteed as accurate by ARMLS. Based on information from the Arizona Regional Multiple Listing Service. Copyright © 2026. Arizona Regional Multiple Listing Service, Inc. All rights reserved.
Information Deemed Reliable But Not Guaranteed. The information being provided is for consumer's personal, non-commercial use and may not be used for any purpose other than to identify prospective properties consumers may be interested in purchasing. This information, including square footage, while not guaranteed, has been acquired from sources believed to be reliable.
Last Updated: 2026-05-17 00:51:46
Phoenix Condo Mania






